













































- POBLE, PALS, GIRONA
- Ref: 3030
Comparteix:
Una promoció única en un entorn privilegiat
4 llits
Habitacions
3
Banys
342 m2
Superfície
Terreny
B
Qualificació energètica
CEIGRUP TORRENT API: Disposem d’una promoció de cases unifamiliars de gran qualitat ubicades a la idíl.lica població de Pals. Unes vivendes modernes pensades per viure còmodament i gaudir de la tranquil.ltat que es respira als pobles.
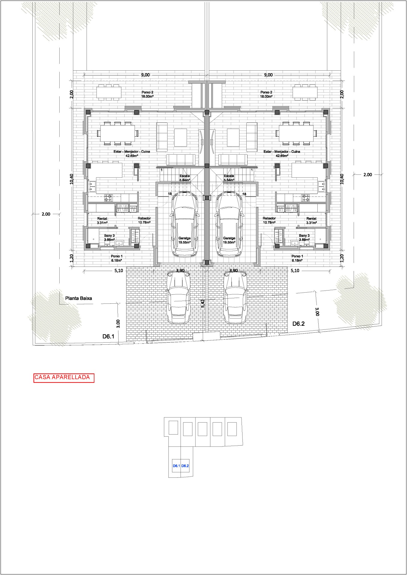
La promoció consta de 5 cases independents i 2 cases aparellades, totes amb jardí i piscina privada.
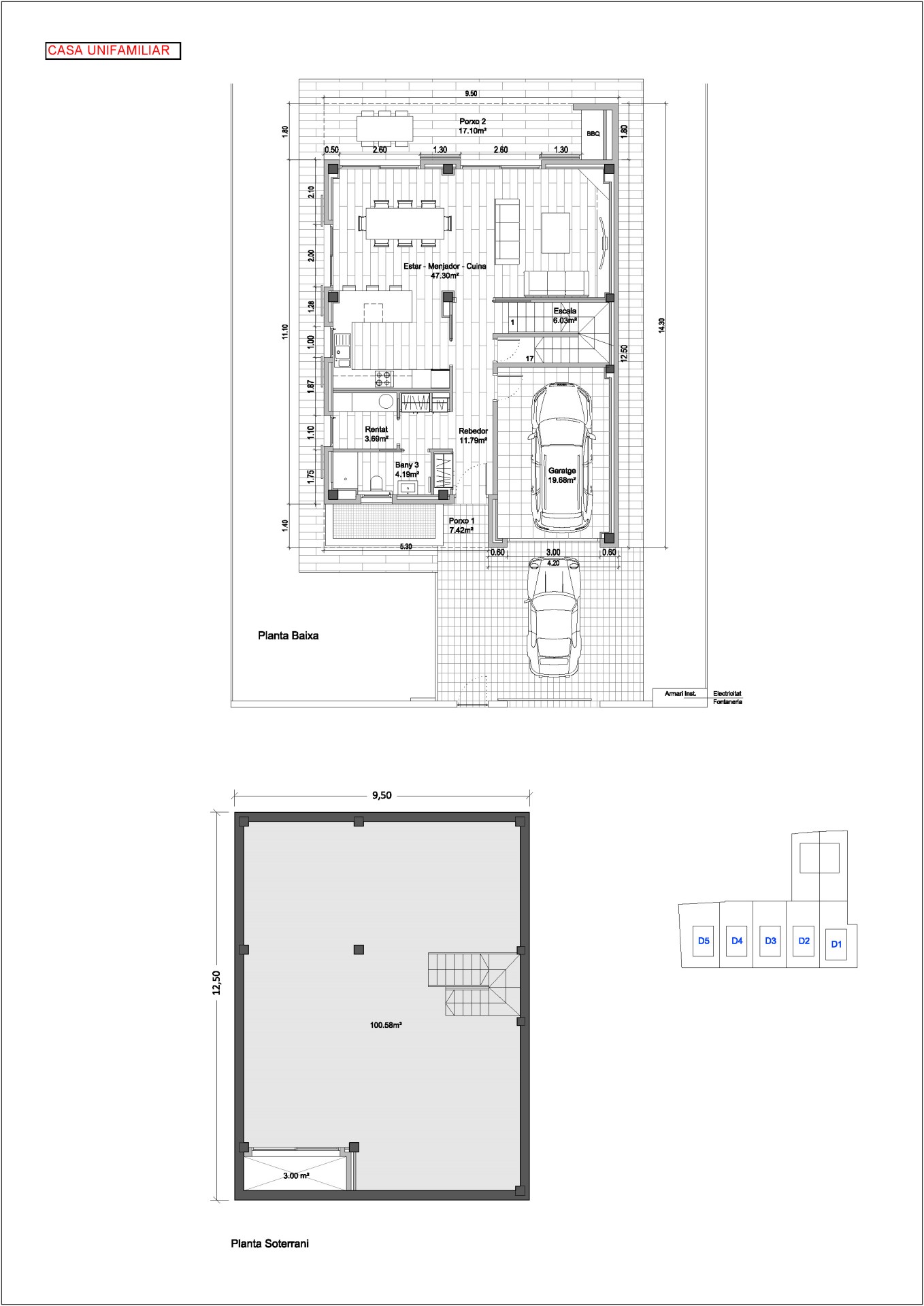
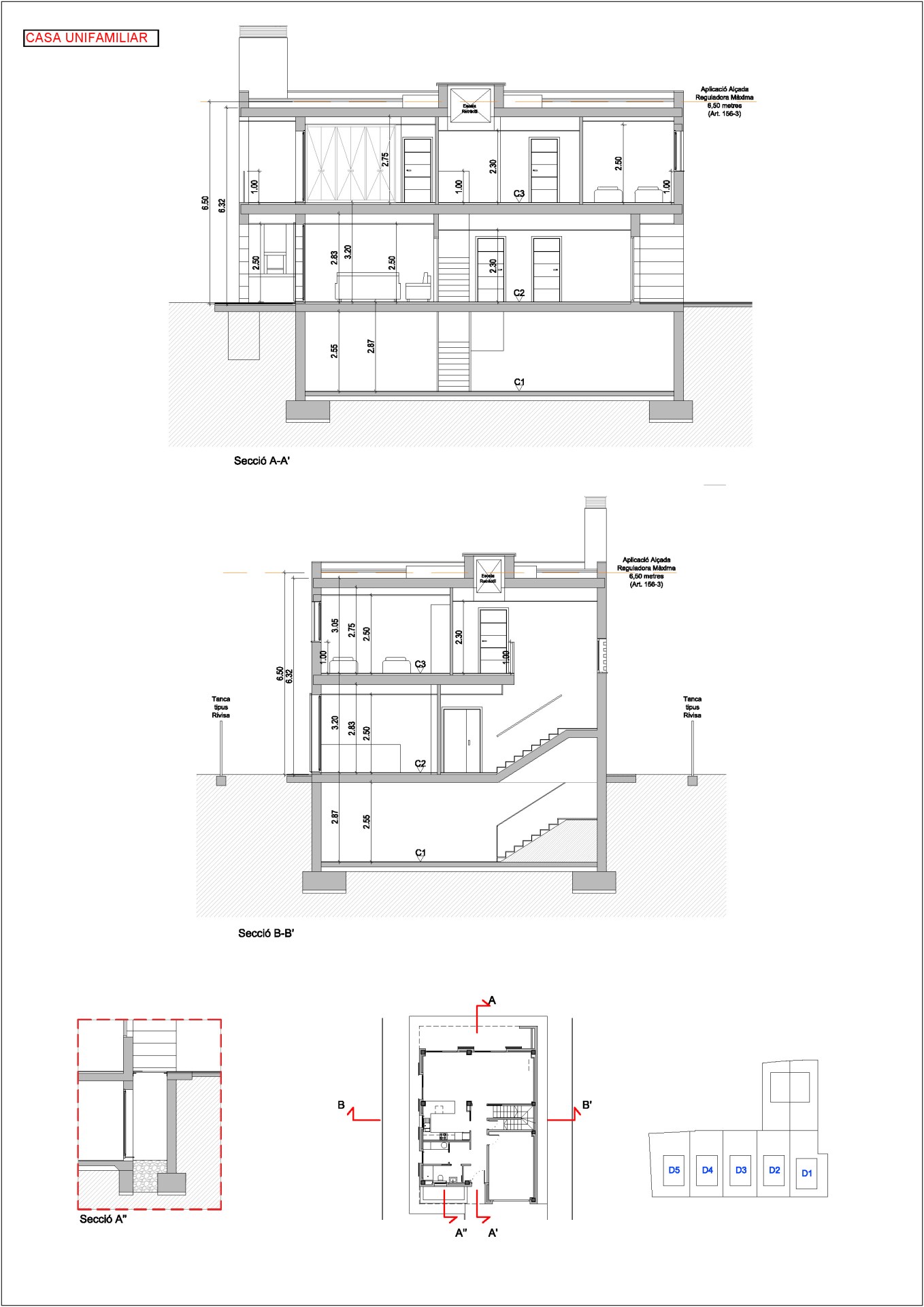
Les cases independents consten de planta soterrani, planta baixa i planta pis. Les aparellades no tenen soterrani, i consten de planta baixa i planta pis.
La superfície construïda aproximada per planta són d’uns 100 m².
La planta soterrani és un espai diàfan al qual s’accedeix per l’escala interior de l’habitatge.
La planta baixa consta de sala d’estar menjador amb cuina oberta, safareig, bany i garatge.
La planta pis te una suite amb vestidor i bany, tres dormitoris dobles i un bany compartit.
Preus des de 770.000€
Pals és una de les viles més pintoresques de la Costa Brava, gràcies a un nucli antic d’origen gòtic que ha recuperat tota l’esplendor després d’una acurada i completa restauració.
El poble es troba situat al cim del Puig Aspre, i el terme municipal arriba fins a la costa, amb una llarguíssima platja, ideal per a la pràctica d’esports aquàtics. Són característics de l’entorn de Pals els camps d’arròs, hereus de l’entorn pantanós que hi havia antigament i que donen un encant afegit.
El Pedró, nucli històric d’origen gòtic, amb uns racons i una essència medievals, és la part més atractiva del municipi, que ofereix altres llocs d’interès com els paisatges dels antics camps d’arròs i les dunes.
Us convidem a descobrir-la!
L'entorn del Baix Empordà
Al cor de la Costa Brava, el Baix Empordà destaca per la combinació de pobles amb encant, paisatge agrícola i marí. La seva capital, la Bisbal d’Empordà, és coneguda per la ceràmica i l’activitat comercial. El territori és viu tot l’any, amb serveis i qualitat de vida.
Natura i Esport
Les cales d’aigua cristal·lina, els camins de ronda i el massís de les Gavarres conviden a fer excursions, rutes amb bicicleta i esports aquàtics. Hi ha una àmplia oferta d’instal·lacions per a activitats com el golf, el pàdel, la vela o el submarinisme.
Patrimoni i cultura
El Baix Empordà conserva un ampli patrimoni arquitectònic, amb pobles medievals com Pals, Peratallada o Monells. La vida cultural és activa, amb fires, mercats i festivals que celebren les tradicions locals i promouen l’art contemporani.
PARC SOL, FIGUERES, GIRONA
CEIGRUP F. COMPANY – Local en venda a la zona...
CENTRE, FIGUERES, GIRONA
CEIGRUP F. COMPANY – Edifici en venda al centre de...
ESTARTIT (L'), GIRONA
CEIGRUP TORRENT API – Tenim aquest acollidor apartament en venda...
TORROELLA DE MONTGRI, GIRONA
ceigrup TORRENT API Oportunitat al cor de Torroella de...
GIRONA, GIRONA
CEIGRUP-FINQUES J. COMPANY.- EDIFICI EN VENDA AL BARRI VELL DE...
GIRONA, GIRONA
CEIGRUP-FINQUES J. COMPANY.-Pis en venda al centre de Girona. Disposa...
VILAFANT, GIRONA
CEIGRUP-F.COMPANY. Casa adossada en venda, de 190m² amb nau –...
PORT DE LA SELVA (EL), GIRONA
Lloguer de local comercial al Port de la Selva a...
LA COMA, LLANÇA, GIRONA
CEIGRUP – F. COMPANY – ZONA LES TONYINES Apartament en...
EMPURIABRAVA, GIRONA
CEIGRUP-F.COMPANY Fantàstic apartament en venda, completament reformat, a 200 mts...
PORT DE LA SELVA (EL), GIRONA
Lloguer de local comercial al Port de la Selva a...
TORROELLA DE MONTGRI, GIRONA
La teva nova llar al cor de Torroella de Montgrí...
ESCALA (L'), GIRONA
CEIGRUP TORRENT API – casa amb piscina privada Descobreix...
TORROELLA DE MONTGRI, GIRONA
CEIGRUP TORRENT API: Apartament en venda a Torroella de Montgrí,...
ROSES, GIRONA
CEIGRUP-F.COMPANY Plaça de garatge en venda, situada a la urbanització...
OLOT - CENTRE, OLOT, GIRONA
CENTRE. Fantàstica casa al centre bo d’Olot, amb parcel.la de...
VILAFANT, GIRONA
CEIGRUP-F.COMPANY. Casa adossada en venda, de 190m² amb nau –...
PORT DE LA SELVA (EL), GIRONA
Finca rústica en venda al Port de la Selva Es...
ESCALA (L'), GIRONA
CEIGRUP TORRENT API – casa amb piscina privada Descobreix...
POBLE , PALS, GIRONA
CEIGRUP TORRENT API: Disposem d’una promoció de cases unifamiliars de...